• Home
  • Projekte
  • In process
  • Projektliste
  • Büro
  • Kontakt
  • Datenschutzerklärung
  • Impressum
  • Projekte
  • In process
  • Büro
  • Kontakt
secklerschick architekten
  • Projekte
  • In process
  • Büro
  • Kontakt

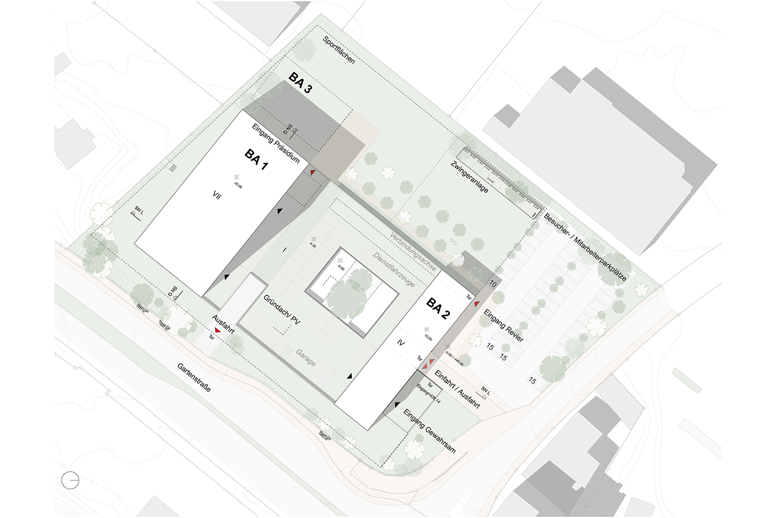
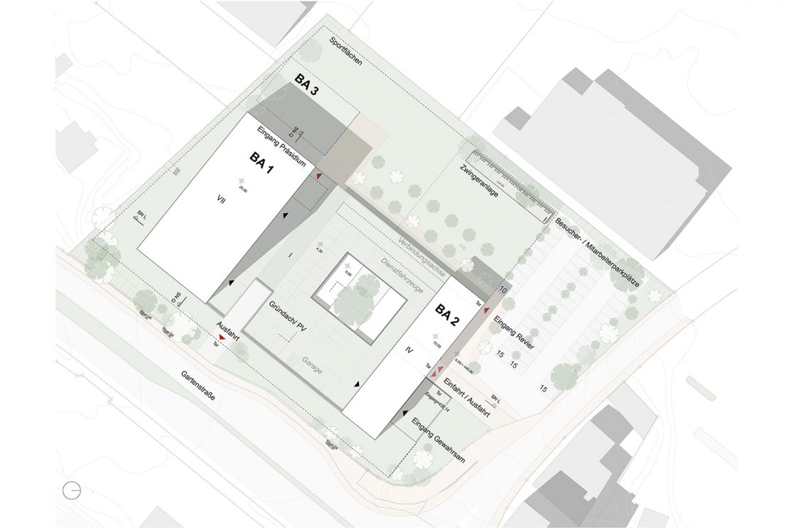
Ravensburg

Wettbewerb

Planungswettbewerb
Neubau des Polizeipräsidiums und des Polizeireviers

Ort: Ravensburg

 

Vorheriges Projekt
Nächstes Projekt
  • Projektliste
  • Datenschutz
  • Impressum