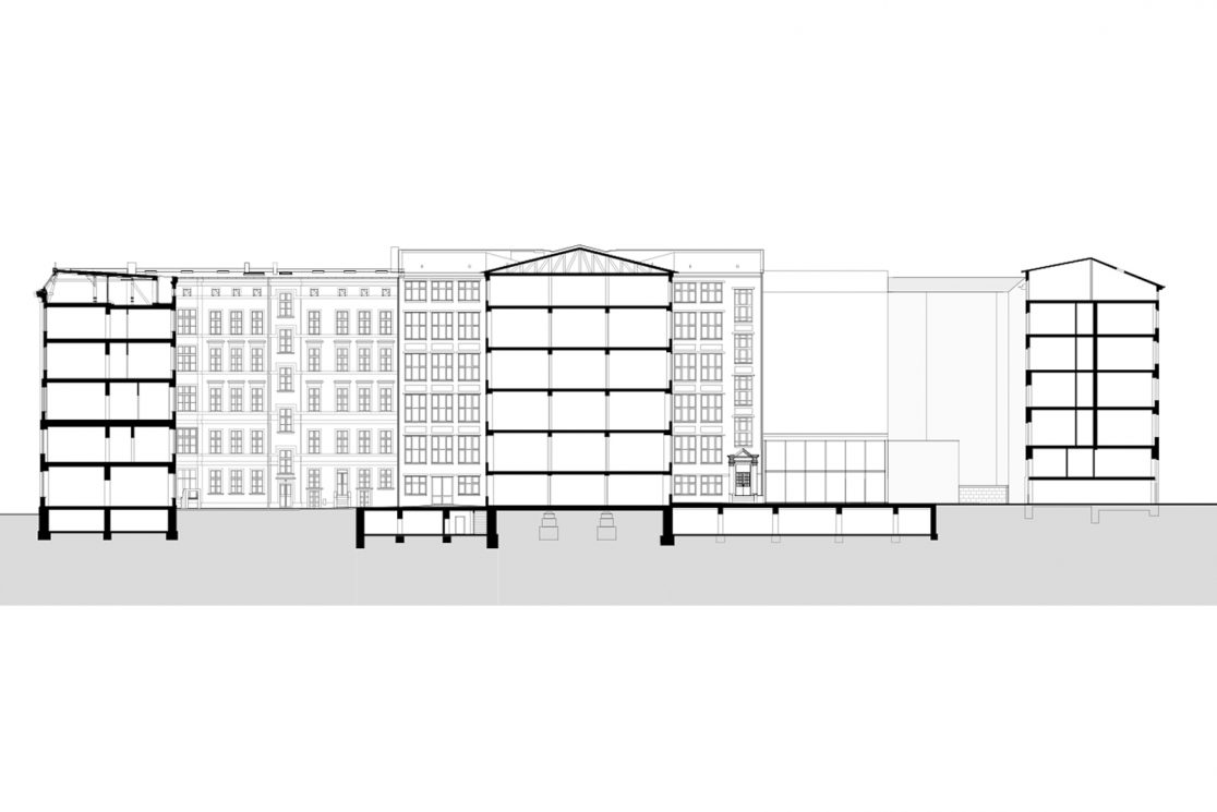
Gutenberghöfe
Baudenkmal
Umbau, Anbau und Sanieung
Ort: Berlin
Bauherr: Optima Aegidius Firmengruppe
Fertigstellung: 2022
LPH: 1-6 / künstlerische Oberbauleitung LPH 8 und Innnenausbau Gewerbefläche
Fläche: 4772 qm
Zusammenarbeit mit Pott Architects und Urbansky Architekten (LPH 1-4)
Fotos: © Isabella Scheel und
© Sebastian Kiener